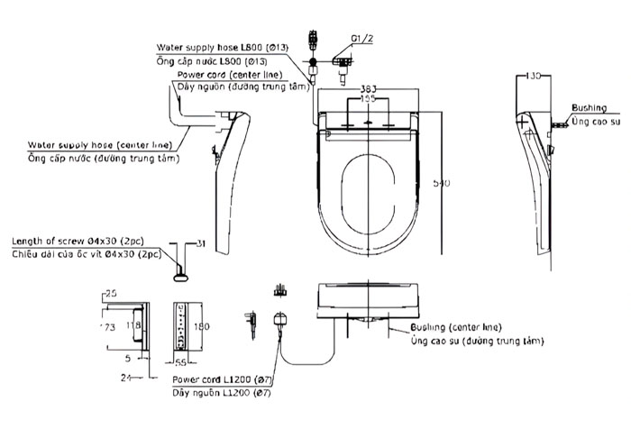
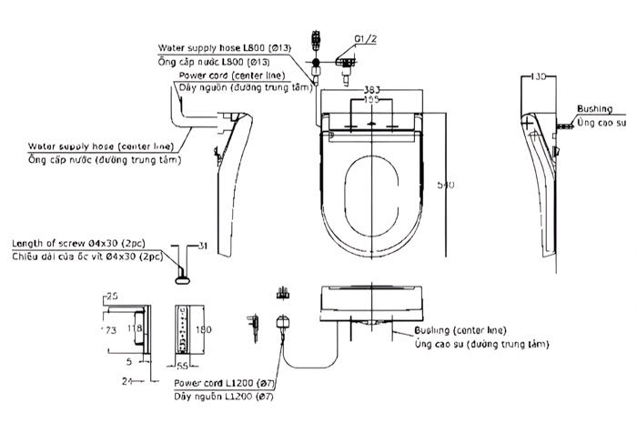
Mã sản phẩm: TCF34570GAA
Trang chủ > Thiết bị vệ sinh > Nắp rửa điện tử WASHLET TCF34570GAA WASHLET S5/TCF34570GAA cao cấp, chính hãng | TOTO
Chính sách sản phẩm
Hàng chính hãng, bảo hành 12 tháng
Miễn phí giao hàng trong ngày
Miễn phí lắp đặt
Hoàn trả khi hư hỏng
Đặc điểm nổi bật
Không có
Nắp rửa điện tử WASHLET TCF34570GAA WASHLET S5/TCF34570GAA cao cấp, chính hãng | TOTO
Xuất xứ: Chính Hãng
32.459.000₫
Còn hàng








Đánh giá và bình luận
Chưa có đánh giá nào.