Kích thước bồn cầu Caesar chuẩn, phổ biến 2025
Chọn đúng kích thước bồn cầu Caesar là yếu tố quyết định sự tiện nghi và thẩm mỹ cho phòng tắm. Bài viết này tổng hợp chi tiết thông số, bản vẽ kỹ thuật các dòng bồn cầu 1 khối, 2 khối, treo tường phổ biến nhất 2025, đồng thời hướng dẫn bạn cách đo tâm thoát và lựa chọn sản phẩm phù hợp với mọi diện tích. Cùng Mao Trung Home tìm hiểu ngay.
Những điểm chính:
- Tâm thoát (tâm xả) là thông số quan trọng nhất, cần đo từ tường đã hoàn thiện; kích thước tiêu chuẩn của bồn cầu Caesar là 300mm.
- Chọn bồn cầu theo diện tích: phòng nhỏ ưu tiên loại 2 khối, treo tường; phòng lớn phù hợp với bồn cầu 1 khối sang trọng.
- Bồn cầu 1 khối thường có kích thước lớn, thiết kế sang trọng; bồn cầu 2 khối thường nhỏ gọn hơn, phù hợp không gian hẹp.
- Bồn cầu treo tường giúp tiết kiệm diện tích sàn tối đa nhưng đòi hỏi tường phải có khả năng chịu lực và lắp đặt âm tường.
- Luôn chừa khoảng trống tối thiểu 40cm hai bên và 50cm phía trước bồn cầu để đảm bảo không gian sử dụng thoải mái.
1. Tầm quan trọng của việc chọn đúng kích thước bồn cầu Caesar
Việc lựa chọn kích thước bồn cầu Caesar phù hợp mang lại nhiều lợi ích cho không gian phòng tắm của bạn. Điều này quan trọng đối với cả gia chủ và đội ngũ thi công.
- Tối ưu không gian: Một chiếc bồn cầu có kích thước vừa vặn giúp phòng tắm trông rộng rãi, cân đối và không gây cản trở lối đi, đặc biệt với các phòng tắm diện tích nhỏ.
- Đảm bảo sự thoải mái: Chiều cao và chiều rộng bệ ngồi phù hợp mang lại trải nghiệm sử dụng dễ chịu cho mọi thành viên trong gia đình.
- Giúp lắp đặt chính xác: Nắm rõ kích thước, đặc biệt là tâm thoát, giúp đội ngũ kỹ thuật chuẩn bị đường ống chờ chính xác, tránh việc phải đục phá, sửa chữa tốn kém sau này.
- Tăng tính thẩm mỹ: Bồn cầu có kích thước hài hòa với các thiết bị vệ sinh khác như lavabo, sen tắm sẽ tạo nên một tổng thể nội thất phòng tắm cân xứng và đẹp mắt.

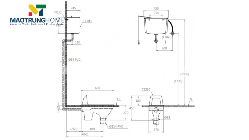
2. Giải thích các thông số kỹ thuật quan trọng của bồn cầu Caesar
Để đọc hiểu bản vẽ và lựa chọn sản phẩm chính xác, bạn cần nắm rõ ý nghĩa của các thông số kỹ thuật cơ bản.
2.1. Kích thước tổng thể (dài x rộng x cao)
Đây là ba thông số cơ bản nhất xác định hình dáng và độ chiếm dụng không gian của bồn cầu. Chúng được đo bằng đơn vị milimét (mm).
- Chiều dài (từ tường ra): Đây là kích thước quan trọng nhất, quyết định khoảng trống phía trước bồn cầu. Một sản phẩm quá dài sẽ làm chật lối đi.
- Chiều rộng: Thông số này ảnh hưởng đến khoảng cách với các thiết bị khác đặt hai bên như chậu rửa mặt, vách kính tắm.
- Chiều cao: Là chiều cao từ sàn đến điểm cao nhất của két nước, ảnh hưởng đến sự cân đối tổng thể trong phòng tắm.
2.2. Tâm thoát (tâm xả)
Tâm thoát là khoảng cách tính từ mặt tường đã tô trát hoàn thiện đến tâm của lỗ thoát chất thải trên sàn nhà. Đây là thông số kỹ thuật bắt buộc phải chính xác để có thể lắp đặt bồn cầu. Tại Việt Nam, tâm thoát tiêu chuẩn và phổ biến nhất là 300mm.
Để đo tâm thoát tại công trình, bạn thực hiện theo các bước sau:
Bước 1: Đảm bảo bức tường phía sau bồn cầu đã được tô trát phẳng và hoàn thiện.
Bước 2: Dùng thước dây đo khoảng cách từ mặt tường đến chính giữa (tâm) của lỗ ống chờ thoát nước dưới sàn.
Bước 3: Ghi lại con số chính xác. Con số này phải khớp với thông số tâm thoát của mẫu bồn cầu bạn dự định mua.
2.3. Đường cấp nước
Bên cạnh tâm thoát, vị trí của đường cấp nước chờ trên tường cũng cần được chú ý. Bạn cần đảm bảo đường cấp nước không bị vướng vào thân bồn cầu hoặc nằm ở vị trí quá xa, gây khó khăn cho việc lắp đặt dây cấp nước.
2.4. Vai trò của bản vẽ kỹ thuật
Bản vẽ kỹ thuật là tài liệu không thể thiếu đối với kiến trúc sư và đội ngũ thi công. Việc xem trước bản vẽ giúp chuẩn bị hệ thống đường ống chờ chính xác, tránh các sai sót và sửa chữa không đáng có.
- Cung cấp kích thước chi tiết của từng bộ phận.
- Xác định chính xác vị trí tâm thoát và đường cấp nước.
- Nêu rõ các yêu cầu về không gian lắp đặt tối thiểu.

3. Bảng kích thước bồn cầu Caesar chi tiết theo từng dòng sản phẩm 2025
Dưới đây là bảng tổng hợp kích thước các dòng bồn cầu Caesar phổ biến đang được phân phối chính hãng tại Mao Trung Home.
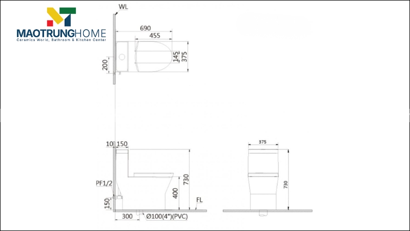
3.1. Kích thước bồn cầu Caesar 1 khối
Bồn cầu 1 khối có thiết kế két nước và thân cầu liền mạch, mang lại vẻ ngoài sang trọng, hiện đại và giúp việc vệ sinh trở nên dễ dàng hơn.
| Mã sản phẩm | Hình ảnh | Kích thước (Dài x Rộng x Cao) | Tâm thoát (mm) | Công nghệ nổi bật |
|---|---|---|---|---|
| Caesar CD1363 | (Hình ảnh sản phẩm) | 740 x 400 x 715 mm | 300 | Xả Aqua Jet, Men sứ chống bám bẩn |
| Caesar CD1356 | (Hình ảnh sản phẩm) | 720 x 400 x 630 mm | 300 | Tiết kiệm nước 3L/4.5L, Nắp đóng êm |
| Caesar C1391 | (Hình ảnh sản phẩm) | 665 x 370 x 755 mm | 300 | Xả xoáy, Thân kín dễ vệ sinh |
| Caesar CD1374 | (Hình ảnh sản phẩm) | 725 x 395 x 730 mm | 300 | Xả nhấn 2 chế độ, Thiết kế tối giản |

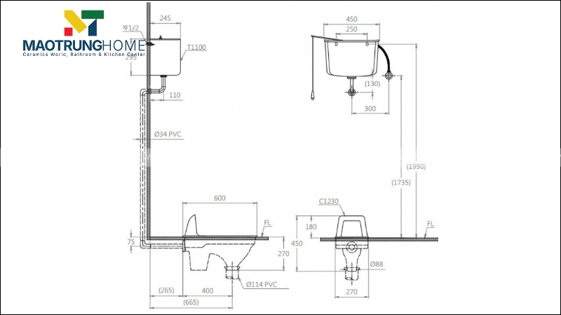
3.2. Kích thước bồn cầu Caesar 2 khối
Dòng bồn cầu 2 khối có két nước và thân cầu tách rời, thường có thiết kế nhỏ gọn hơn và mức giá hợp lý, phù hợp với nhiều không gian phòng tắm.
| Mã sản phẩm | Hình ảnh | Kích thước (Dài x Rộng x Cao) | Tâm thoát (mm) |
|---|---|---|---|
| Caesar CD1331 | (Hình ảnh sản phẩm) | 740 x 390 x 495 mm (thân cầu) | 300 |
| Caesar CDS1325 | (Hình ảnh sản phẩm) | 690 x 370 x 790 mm | 300 |
| Caesar CD1551 | (Hình ảnh sản phẩm) | 650 x 370 x 770 mm | 300 |

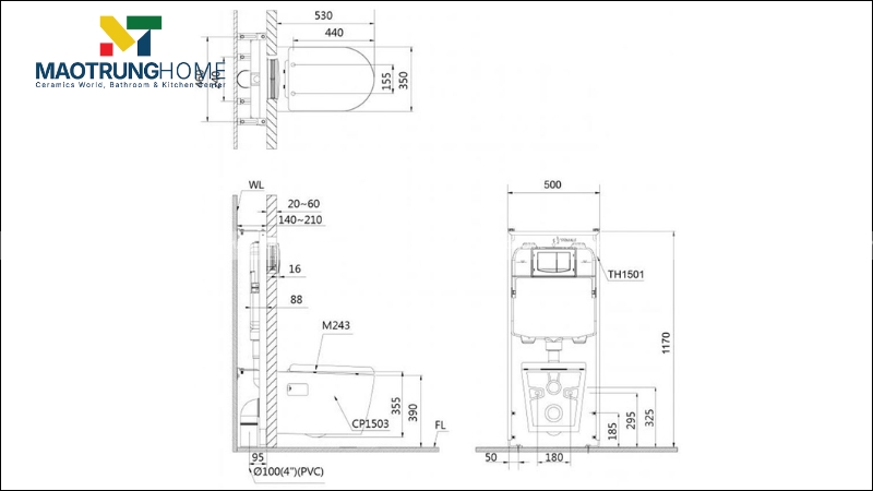
3.3. Kích thước bồn cầu Caesar treo tường (âm tường)
Bồn cầu treo tường có két nước được lắp đặt âm trong tường, giúp tiết kiệm tối đa diện tích sàn và mang lại phong cách tối giản, hiện đại.
| Mã sản phẩm | Hình ảnh | Kích thước thân cầu (Dài x Rộng x Cao) | Yêu cầu kỹ thuật |
|---|---|---|---|
| Caesar CPT1503 | (Hình ảnh sản phẩm) | 540 x 360 x 355 mm | Tường chịu lực, lắp cùng két nước âm tường |
| Caesar CPT1325 | (Hình ảnh sản phẩm) | 550 x 360 x 360 mm | Tường chịu lực, lắp cùng két nước âm tường |
Lưu ý quan trọng khi chọn bồn cầu treo tường là tường lắp đặt phải có khả năng chịu lực và đủ độ dày để chứa khung két nước. Bạn cần tham khảo kỹ bản vẽ kỹ thuật của cả thân cầu và bộ khung âm tường.

3.4. Kích thước bồn cầu xổm Caesar
Bồn cầu xổm là lựa chọn phổ biến cho các công trình công cộng, nhà trọ hoặc khu vực phụ nhờ độ bền cao và cấu trúc đơn giản.
| Mã sản phẩm | Hình ảnh | Kích thước (Dài x Rộng x Cao) |
|---|---|---|
| Caesar C1280 | (Hình ảnh sản phẩm) | 710 x 290 x 220 mm |
| Caesar CS1230 | (Hình ảnh sản phẩm) | 595 x 300 x 205 mm |

4. Hướng dẫn chọn kích thước bồn cầu Caesar phù hợp theo diện tích phòng tắm
Tùy vào diện tích thực tế, bạn có thể lựa chọn dòng sản phẩm có kích thước phù hợp để tối ưu hóa không gian.
4.1. Cho phòng tắm siêu nhỏ (dưới 2m²)
Với không gian dưới 2m², việc tối ưu từng centimet là rất quan trọng. Mao Trung Home gợi ý hai giải pháp:
- Bồn cầu 2 khối nhỏ gọn: Các mẫu như Caesar CD1551 có chiều dài ngắn, giúp tiết kiệm không gian phía trước.
- Bồn cầu treo tường: Lựa chọn này giải phóng hoàn toàn không gian sàn, giúp phòng tắm trông thoáng đãng và dễ dàng vệ sinh hơn.

4.2. Cho phòng tắm vừa (từ 2m² đến 4m²)
Đây là diện tích phổ biến nhất cho phòng tắm tại Việt Nam, cho phép bạn có nhiều lựa chọn hơn. Bạn có thể thoải mái chọn các dòng bồn cầu 2 khối hoặc các mẫu bồn cầu 1 khối có kích thước tiêu chuẩn như Caesar CD1356. Quyết định lúc này sẽ phụ thuộc nhiều hơn vào ngân sách và phong cách thiết kế bạn hướng tới.

4.3. Cho phòng tắm lớn (trên 4m²)
Trong một không gian rộng rãi, một chiếc bồn cầu 1 khối với thiết kế bề thế như Caesar CD1363 sẽ là điểm nhấn sang trọng, tạo sự cân đối cho tổng thể. Bạn nên tránh các mẫu bồn cầu quá nhỏ gọn vì chúng có thể bị “lọt thỏm” và làm mất đi sự hài hòa của không gian.

5. Lưu ý về không gian tiêu chuẩn khi lắp đặt bồn cầu
Để đảm bảo trải nghiệm sử dụng thoải mái và thuận tiện cho việc vệ sinh, bạn nên tuân thủ các khoảng cách lắp đặt tối thiểu sau:
- Khoảng cách từ tâm bồn cầu đến tường hai bên: Tối thiểu 40cm mỗi bên.
- Khoảng trống phía trước bồn cầu: Tối thiểu 50-60cm tính từ điểm ngoài cùng của bồn cầu.
Các tiêu chuẩn này giúp kiến trúc sư và chủ nhà bố trí mặt bằng thiết bị vệ sinh một cách hợp lý và khoa học.

6. Câu hỏi thường gặp về kích thước bồn cầu Caesar
6.1. Tâm thoát 280mm có lắp được bồn cầu Caesar tâm thoát 300mm không?
Không thể lắp đặt trực tiếp. Tuy nhiên, bạn có thể sử dụng một phụ kiện gọi là “ống nối chuyển tâm” để điều chỉnh độ lệch. Giải pháp này giúp bạn lắp đặt bồn cầu mà không cần đục sàn để thay đổi đường ống chờ.
6.2. So sánh kích thước bồn cầu Caesar và Inax, nên chọn loại nào?
Về cơ bản, kích thước tiêu chuẩn của hai thương hiệu này khá tương đồng, đặc biệt là tâm thoát 300mm. Sự khác biệt chính nằm ở ngôn ngữ thiết kế, kiểu dáng, công nghệ men sứ, hệ thống xả và phân khúc giá. Việc lựa chọn sẽ phụ thuộc vào ngân sách và sở thích thẩm mỹ của bạn.
6.3. Bồn cầu 1 khối và 2 khối, loại nào chiếm nhiều diện tích hơn?
Thông thường, các mẫu bồn cầu 1 khối sẽ có kích thước tổng thể (đặc biệt là chiều dài và chiều rộng) lớn hơn một chút so với các mẫu 2 khối tiêu chuẩn. Điều này là do thiết kế liền mạch và bề thế hơn của dòng 1 khối.
6.4. Mao Trung Home có hỗ trợ khảo sát và tư vấn lắp đặt tại nhà không?
Hiện tại, Mao Trung Home hỗ trợ tư vấn kỹ thuật chuyên sâu qua điện thoại, Zalo hoặc trực tiếp tại showroom 291 Tô Hiến Thành. Đội ngũ của chúng tôi sẽ dựa trên bản vẽ hoặc hình ảnh thực tế mà khách hàng cung cấp để tư vấn lựa chọn sản phẩm có kích thước chính xác và giải pháp lắp đặt phù hợp nhất.

7. Mua bồn cầu Caesar chính hãng, đa dạng kích thước ở đâu uy tín?
Để lựa chọn được bồn cầu chất lượng và phù hợp, việc tìm đến một nhà cung cấp uy tín với sản phẩm đa dạng là yếu tố then chốt. Tại Mao Trung Home, chúng tôi cung cấp đầy đủ các dòng bồn cầu từ hàng nội địa đến nhập khẩu cao cấp để đáp ứng mọi phân khúc.
7.1. Đại lý ủy quyền chính thức của Caesar
Mao Trung Home là đại lý phân phối cấp 1 của thương hiệu Caesar tại Việt Nam. Chúng tôi cam kết 100% sản phẩm cung cấp đều là hàng chính hãng, có đầy đủ giấy tờ chứng nhận chất lượng và xuất xứ, đảm bảo quyền lợi cho khách hàng.
7.2. Đa dạng mẫu mã, sẵn hàng tại kho
Chúng tôi cung cấp đầy đủ các dòng bồn cầu Caesar từ 1 khối, 2 khối đến treo tường với nhiều kiểu dáng và mức giá khác nhau. Hàng hóa luôn có sẵn số lượng lớn tại kho, sẵn sàng đáp ứng nhanh chóng cho cả khách hàng cá nhân và các dự án lớn.
7.3. Tư vấn kỹ thuật chuyên sâu
Đội ngũ tư vấn viên tại Mao Trung Home am hiểu sâu về thông số kỹ thuật sản phẩm và có kinh nghiệm thực tế. Chúng tôi sẵn sàng hỗ trợ khách hàng đọc bản vẽ, tư vấn chọn kích thước phù hợp với thiết kế và đảm bảo việc lắp đặt diễn ra thuận lợi.
7.4. Chính sách bảo hành và hậu mãi vượt trội
Mọi sản phẩm bồn cầu Caesar mua tại Mao Trung Home đều được áp dụng chính sách bảo hành chính hãng. Chúng tôi còn cung cấp dịch vụ giao hàng nhanh toàn quốc, hỗ trợ kỹ thuật sau bán hàng và xử lý mọi vấn đề phát sinh một cách nhanh chóng, chuyên nghiệp.
Với cam kết về sản phẩm chính hãng, nguồn gốc xuất xứ rõ ràng, Mao Trung Home tự hào là đối tác tin cậy của nhiều kiến trúc sư, nhà thầu và hàng ngàn gia đình Việt. Chúng tôi không chỉ cung cấp sản phẩm mà còn mang đến giải pháp toàn diện cùng dịch vụ hậu mãi tận tâm, giúp bạn hoàn thiện ngôi nhà mơ ước.
Thông tin liên hệ Mao Trung Home:
- Website: maotrung.com
- Địa chỉ showroom: 291 Tô Hiến Thành, Phường Hòa Hưng, TP. HCM (Quận 10 cũ)
- Hotline: 0903 572 468

Xem thêm:
- Kích thước bồn cầu tiêu chuẩn: Bảng chi tiết và cách đo tâm xả
- Kích thước bồn cầu Inax 1, 2 khối, treo tường chi tiết 2025
- Kích thước bồn cầu treo tường chuẩn 2025 và cách chọn, lắp đặt
Việc nắm rõ kích thước bồn cầu Caesar không chỉ giúp bạn lựa chọn sản phẩm vừa vặn mà còn đảm bảo sự tiện nghi lâu dài. Hy vọng bảng thông số và hướng dẫn từ Mao Trung Home đã cung cấp những thông tin hữu ích. Để xem mẫu thực tế và nhận tư vấn kỹ thuật chi tiết, hãy ghé showroom của chúng tôi hoặc liên hệ hotline ngay hôm nay.


