Kích thước bồn tiểu nam tiêu chuẩn mới nhất 2026
Việc chọn kích thước bồn tiểu nam không chỉ dừng ở mẫu mã; sai lầm trong việc xác định chiều cao treo và vị trí đường ống chờ có thể khiến việc lắp đặt thất bại, gây tốn kém chi phí sửa chữa. Bài viết sau sẽ hệ thống hóa toàn bộ các thông số kỹ thuật quan trọng nhất, từ kích thước bồn tiểu nam tiêu chuẩn cho từng loại đến chiều cao lắp đặt chính xác, giúp bạn lựa chọn và thi công một cách tự tin, tránh mọi sai sót không đáng có. Hãy cùng Mao Trung Home tìm hiểu nhé!
Những điểm chính
- Việc chọn kích thước bồn tiểu nam phù hợp giúp tối ưu không gian, đảm bảo sự thoải mái cho người dùng và nâng cao tính thẩm mỹ tổng thể.
- Bồn tiểu nam có hai loại chính: treo tường (gọn, cho không gian nhỏ) và đặt sàn (vững chãi, cho không gian công cộng rộng rãi).
- Chiều cao lắp đặt tiêu chuẩn tính từ sàn là 60-65 cm cho người lớn và 45-55 cm cho trẻ em để đảm bảo sử dụng thuận tiện.
Vị trí đường ống cấp và thoát chờ phải được xác định chính xác theo bản vẽ kỹ thuật của sản phẩm trước khi thi công ốp lát tường.- Khi lắp nhiều bồn tiểu liền kề, khoảng cách tối thiểu giữa tâm hai bồn nên là 60-70cm để tạo sự riêng tư và thoải mái.
1. Tại sao cần quan tâm đến kích thước bồn tiểu nam?
- Tối ưu hóa không gian: Kích thước phù hợp giúp nhà vệ sinh, đặc biệt là khu vực có diện tích hạn chế, trở nên cân đối, thoáng đãng và không gây cảm giác chật chội.
- Đảm bảo sự thoải mái cho người dùng: Chiều cao và độ sâu của bồn tiểu cần tương thích với vóc dáng trung bình, giúp quá trình sử dụng tiện lợi, sạch sẽ và hạn chế vương vãi ra sàn.
- Thuận tiện cho lắp đặt và bảo trì: Chọn kích thước chuẩn giúp việc thi công đường cấp nước và ống thoát chờ trở nên dễ dàng, chính xác, tiết kiệm thời gian và chi phí sửa chữa.
- Nâng cao tính thẩm mỹ: Một chiếc bồn tiểu có kích thước hài hòa với các thiết bị vệ sinh khác và tổng thể không gian sẽ góp phần tạo nên một khu vực vệ sinh sạch sẽ, sang trọng.
2. Phân loại bồn tiểu nam và kích thước tiêu chuẩn tương ứng
Trên thị trường hiện nay, bồn tiểu nam được phân loại chủ yếu dựa trên kiểu dáng lắp đặt. Mỗi loại sẽ có một khoảng kích thước phổ biến, phù hợp với các nhu cầu và điều kiện không gian khác nhau.
2.1. Bồn tiểu nam treo tường
Bồn tiểu nam treo tường là dòng sản phẩm phổ biến nhất nhờ thiết kế hiện đại, gọn gàng và khả năng tiết kiệm diện tích sàn hiệu quả. Việc lắp đặt treo tường cũng giúp cho công việc vệ sinh sàn nhà bên dưới trở nên đơn giản và nhanh chóng hơn.
Thông số kỹ thuật bồn tiểu nam treo tường rất đa dạng, thường dao động trong khoảng:
- Chiều cao: 600 – 900 mm
- Chiều rộng: 250 – 450 mm
- Chiều sâu: 250 – 400 mm

2.2. Bồn tiểu nam đặt sàn
Bồn tiểu nam đặt sàn (hay tiểu đứng) có thiết kế vững chãi, được lắp đặt trực tiếp xuống mặt sàn. Dòng sản phẩm này thường có kích thước lớn hơn, phù hợp với các không gian vệ sinh rộng rãi như tại trung tâm thương mại, sân bay, hay tòa nhà văn phòng.
Kích thước thông dụng của bồn tiểu đặt sàn là:
- Chiều cao: 800 – 1200 mm
- Chiều rộng: 350 – 450 mm
- Chiều sâu: 350 – 450 mm

2.3. Bồn tiểu nam cảm ứng
Bồn tiểu nam cảm ứng không phải là một loại riêng về kiểu dáng mà là một tính năng công nghệ tích hợp. Van xả cảm ứng có thể được trang bị trên cả bồn tiểu treo tường và đặt sàn, giúp tự động xả nước sau khi sử dụng.
Tính năng này không chỉ đảm bảo vệ sinh, hạn chế tiếp xúc trực tiếp mà còn giúp tiết kiệm nước hiệu quả. Kích thước của các bồn tiểu sẽ tuân theo tiêu chuẩn của dòng tiểu nam treo tường hoặc đặt sàn mà bồn tiểu được tích hợp.

3. Hướng dẫn chọn kích thước bồn tiểu nam phù hợp với không gian
Việc lựa chọn kích thước không chỉ dựa vào thông số của sản phẩm. Bạn cần phải xem xét kỹ lưỡng diện tích và đặc thù của khu vực lắp đặt để đảm bảo tối ưu công năng và giá trị thẩm mỹ cho công trình.
3.1. Đối với nhà vệ sinh gia đình
Không gian nhà vệ sinh gia đình thường có diện tích vừa phải hoặc khá hạn chế. Do đó, các mẫu bồn tiểu nam treo tường cỡ nhỏ và trung bình là lựa chọn lý tưởng và được ưa chuộng.
Các mẫu có chiều cao dưới 700mm và chiều rộng khoảng 300mm sẽ giúp tiết kiệm diện tích tối đa. Nhờ vậy, phòng tắm luôn thoáng đãng mà vẫn đáp ứng đầy đủ tiện nghi cho các thành viên nam trong gia đình.

3.2. Đối với công trình công cộng (văn phòng, nhà hàng, TTTM)
Các công trình công cộng đòi hỏi thiết bị phòng tắm nam phải có độ bền cao, dễ vệ sinh và đáp ứng tần suất sử dụng lớn. Tùy vào diện tích và phong cách thiết kế, bạn có thể lựa chọn linh hoạt giữa các loại.
Với không gian rộng, bồn tiểu đặt sàn mang lại cảm giác bề thế, chắc chắn. Với không gian cần tối ưu diện tích hoặc lắp đặt nhiều bồn tiểu liền kề, các mẫu treo tường kết hợp vách ngăn tiểu nam là giải pháp tối ưu.

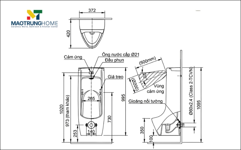
4. Các thông số lắp đặt bồn tiểu nam quan trọng cần biết
Để bồn tiểu hoạt động tốt và thuận tiện cho người dùng, việc tuân thủ các thông số kỹ thuật khi lắp đặt là vô cùng quan trọng. Bạn cần đặc biệt chú ý đến bản vẽ kỹ thuật chi tiết của sản phẩm.
4.1. Chiều cao lắp đặt bồn tiểu nam treo tường
Chiều cao lắp đặt được tính từ mặt sàn đã hoàn thiện đến vành miệng của bồn tiểu. Đây là yếu tố quyết định trực tiếp sự thoải mái và sạch sẽ khi sử dụng.
- Đối với người lớn: Chiều cao lắp đặt bồn tiểu nam tiêu chuẩn là từ 600 – 650 mm.
- Đối với trẻ em (tại trường mầm non, tiểu học): Chiều cao này nên được hạ thấp xuống khoảng 450 – 550 mm để phù hợp với vóc dáng của các bé.
4.2. Vị trí đường cấp nước và ống thoát chờ
Xác định chính xác vị trí chờ cho đường cấp và ống thoát nước là khâu then chốt, quyết định việc lắp đặt đúng kỹ thuật và nhanh chóng. Kích thước ống chờ bồn tiểu nam cần được chuẩn bị trước khi ốp lát tường.
- Tâm ống thoát chờ (tính từ sàn lên): Thường nằm trong khoảng 450 – 550 mm, tùy thuộc vào chiều cao lắp đặt mong muốn và model sản phẩm. Đường kính ống thoát phổ biến là Ø49 hoặc Ø60.
- Tâm đường cấp nước (tính từ sàn lên): Thường cao hơn vành miệng bồn tiểu, dao động từ 900 – 1200 mm.
- Lưu ý quan trọng: Luôn tham khảo bản vẽ kỹ thuật đi kèm của từng sản phẩm cụ thể để có thông số chính xác trước khi thi công đường ống.

4.3. Khoảng cách giữa các bồn tiểu nam
Khi lắp đặt nhiều bồn tiểu trong khu vệ sinh công cộng, khoảng cách giữa chúng cần được đảm bảo để tạo sự riêng tư và thoải mái cho người dùng.
Khoảng cách tối thiểu giữa tâm của hai bồn tiểu liền kề nên là 600 – 700 mm. Nếu không gian cho phép, việc lắp đặt thêm vách ngăn tiểu nam là giải pháp tối ưu để tăng tính riêng tư và thẩm mỹ.
5. Gợi ý một số mẫu bồn tiểu nam theo kích thước tại Mao Trung Home
Mao Trung Home cung cấp đa dạng các mẫu bồn tiểu nam từ các thương hiệu uy tín như INAX, TOTO, Viglacera, American Standard… đáp ứng mọi yêu cầu về kích cỡ, ngân sách và phong cách thiết kế.
5.1. Mẫu bồn tiểu nam nhỏ gọn (< 600mm chiều cao)
Lý tưởng cho không gian nhỏ, các mẫu này giúp tối ưu hóa diện tích mà vẫn đảm bảo công năng, phù hợp cho nhà riêng. Một số mẫu tiêu biểu như INAX U-440V (cao 500mm) hay Viglacera TT5 (cao 530mm).

5.2. Mẫu bồn tiểu nam kích thước trung bình (600mm – 900mm chiều cao)
Đây là dòng sản phẩm phổ biến nhất, cân bằng tốt giữa kích thước, thẩm mỹ và sự thoải mái khi sử dụng. Các thương hiệu như TOTO, INAX đều có nhiều lựa chọn trong phân khúc này, ví dụ như TOTO UT904HN (cao 690mm).

5.3. Mẫu bồn tiểu nam đặt sàn cỡ lớn (> 900mm chiều cao)
Phù hợp cho các công trình lớn, sang trọng như khách sạn, trung tâm hội nghị. Các mẫu tiểu đứng mang lại vẻ vững chãi và sang trọng, ví dụ như TOTO UT508T (cao 1055mm) hay INAX AFU-600VDC (cao 1140mm).

6. Lưu ý khi chọn mua và lắp đặt bồn tiểu nam
- Kiểm tra bản vẽ kỹ thuật: Luôn yêu cầu nhà cung cấp cho xem kỹ bản vẽ kỹ thuật chi tiết của sản phẩm trước khi mua để đảm bảo kích thước và vị trí lắp đặt phù hợp.
- Lựa chọn van xả phù hợp: Cân nhắc giữa van xả nhấn tay truyền thống và van xả cảm ứng hiện đại. Van cảm ứng tiện lợi và vệ sinh hơn nhưng có chi phí cao hơn.
- Chất liệu men sứ: Ưu tiên các sản phẩm sử dụng công nghệ men sứ cao cấp như Aqua Ceramic của INAX (giúp chống bám bẩn và cặn nước) hay CeFiONtect của TOTO (bề mặt siêu mịn, ngăn vi khuẩn) để dễ vệ sinh.
- Kiểm tra áp lực nước: Đảm bảo áp lực nước tại vị trí lắp đặt đủ mạnh để van xả hoạt động hiệu quả, xả sạch và cuốn trôi hiệu quả chất bẩn trong một lần xả.
- Chính sách bảo hành và linh kiện: Chọn mua tại các nhà phân phối uy tín như Mao Trung Home để được đảm bảo về chính sách bảo hành chính hãng và nguồn cung linh kiện thay thế khi cần.
7. Mao Trung Home – Đồng hành cùng bạn lựa chọn thiết bị vệ sinh ưng ý
Để lựa chọn được bồn tiểu nam chất lượng và phù hợp, việc tìm đến một nhà cung cấp uy tín với sản phẩm đa dạng là yếu tố then chốt. Tại Mao Trung Home, chúng tôi cung cấp đầy đủ các dòng bồn tiểu nam từ hàng nội địa đến nhập khẩu cao cấp (Ý, Tây Ban Nha, Ấn Độ…) để đáp ứng mọi phân khúc.
Với cam kết về sản phẩm chính hãng, nguồn gốc xuất xứ rõ ràng, Mao Trung Home tự hào là đối tác tin cậy của nhiều kiến trúc sư, nhà thầu và hàng ngàn gia đình Việt. Chúng tôi không chỉ cung cấp sản phẩm mà còn mang đến giải pháp toàn diện cùng dịch vụ hậu mãi tận tâm, giúp bạn hoàn thiện ngôi nhà mơ ước.
Thông tin liên hệ Mao Trung Home:
- Website: maotrung.com
- Địa chỉ showroom: 291 Tô Hiến Thành, Phường Hòa Hưng, TP. HCM (Quận 10 cũ)
- Hotline: 0903 572 468
8. Câu hỏi liên quan
8.1. Chiều cao lắp đặt bồn tiểu nam tiêu chuẩn là bao nhiêu?
Chiều cao lắp đặt tiêu chuẩn tính từ sàn hoàn thiện đến vành miệng bồn tiểu là từ 60cm – 65cm đối với người lớn, và khoảng 45cm – 55cm đối với trẻ em.
8.2. Nên chọn bồn tiểu nam treo tường hay đặt sàn cho nhà riêng?
Đối với không gian nhà vệ sinh gia đình thường có diện tích hạn chế, bồn tiểu nam treo tường với thiết kế nhỏ gọn là lựa chọn lý tưởng giúp tối ưu không gian hiệu quả.
8.3. Khoảng cách tối thiểu giữa hai bồn tiểu nam khi lắp đặt là bao nhiêu?
Để đảm bảo sự riêng tư và thoải mái cho người sử dụng, khoảng cách tối thiểu giữa tâm của hai bồn tiểu nam liền kề được khuyến nghị là từ 60cm đến 70cm.
8.4. Vị trí đường ống chờ cho bồn tiểu nam cần được xác định như thế nào?
Vị trí tâm ống thoát chờ thường cách sàn khoảng 45cm – 55cm, trong khi tâm đường cấp nước ở vị trí cao hơn, dao động từ 90cm – 120cm tùy theo từng sản phẩm.
Xem thêm:
- Bồn cầu loại nào tốt nhất? Top 6 hãng bồn cầu tốt nhất 2025
- Bồn tắm đứng là gì? Cấu tạo, ưu nhược điểm, có nên mua?
- Phòng tắm kính là gì? 7 lợi ích khi lắp đặt phòng tắm kính
Việc am hiểu và áp dụng chính xác các thông số kỹ thuật sẽ giúp bạn kiến tạo một không gian vệ sinh chuyên nghiệp và tiện nghi. Hãy liên hệ ngay với Mao Trung Home để được tư vấn chi tiết và lựa chọn sản phẩm ưng ý nhất cho công trình của mình.


