Mã sản phẩm: CT562D
Chính sách sản phẩm
 
					Hàng chính hãng, bảo hành 12 tháng
 
					Miễn phí giao hàng trong ngày
 
					Miễn phí lắp đặt
 
					Hoàn trả khi hư hỏng
Đặc điểm nổi bật
							Không có						
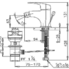
					VÒI COTTO – CT562D
 
						 
						Xuất xứ: Chính Hãng
1.890.000₫
Còn hàng
				

 
  

 
          
 
					 
					 
						
			
		
 GẠCH
GẠCH THIẾT BỊ VỆ SINH
THIẾT BỊ VỆ SINH THIẾT BỊ BẾP
THIẾT BỊ BẾP SƠN
SƠN THIẾT BỊ KHÓA
THIẾT BỊ KHÓA Blog
Blog Hồ sơ năng lực
Hồ sơ năng lực
 
						
					 
						
					
Đánh giá và bình luận
Chưa có đánh giá nào.